Greenfield Crescent, Brighton, BN1 8HJ

3 Bed Semi-detached bungalow for sale

£450,000

Calculate your mortgage repayments
  • 3 bedrooms
  • 1 bathroom
  • 1 reception
  • Key Information:

Key Features

  • Fantastic Prime Corner Plot
  • Wrap Round Gardens To Three Sides
  • Private Driveway
  • Three Bedrooms & Dressing Room/Office

Description

Disclaimer

Virtual reality furniture for marketing purposes only.
All interested parties must verify accuracy with your solicitor, your solicitor also must verify lease and tenure information, where the property has been extended/converted, planning/building regulations consents and fixtures and fittings. All dimensions are approximate and quoted for guidance only as are floor plans which are not to scale and their accuracy cannot be confirmed. The information provided about this property does not constitute or form part of an offer or contract, nor maybe it be regarded as representations. Reference to appliances and/or services does not imply that they are necessarily in working order or fit for the purpose.
THESE PARTICULARS ARE BELIEVED TO BE CORRECT, BUT THEIR ACCURACY IS NOT GUARANTEED. THEY DO NOT FORM PART OF ANY CONTRACT.


Location


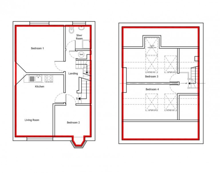
Floorplan

Floorplan for Greenfield Crescent, Brighton

EPC

EPC for Greenfield Crescent, Brighton

*This mortgage calculator is provided for general information purposes only. It's intended to provide you with an estimate of your potential mortgage payments and does not constitute an offer of finance or advice. The calculations are based on the information you provide and do not take into account your individual needs and circumstances.

The calculator does not include all the costs you will need to pay when taking out a mortgage. Your actual mortgage payments may be higher or lower than the estimates provided by this calculator. The interest rates used in the calculations are subject to change and may not reflect the actual rates available in the market.

Please note that the calculator does not consider changes in interest rates over time, early repayment charges, or any other fees and charges that may apply to your mortgage. You should always seek professional advice before making any financial decisions.

Remember, your home may be repossessed if you do not keep up repayments on your mortgage.

Calculate Your Stamp Duty
£
Results
Stamp Duty To Pay:
Effective Rate:
Tax Band % Taxable Sum Tax

£ 0
£ 0
Your estimated gross rental yield would be:
0.00%

Similar Properties

Barnett Road, Brighton
For Sale

Barnett Road, Brighton, BN1 7GH

3 Bed Terraced House For Sale
£550,000
Stanford Avenue, Brighton
For Sale

Stanford Avenue, Brighton, BN1 6AA

3 Bed Flat For Sale
£300,000
Brangwyn Avenue, Brighton
For Sale

Brangwyn Avenue, Brighton, BN1 8XH

3 Bed Semi-detached house For Sale
Guide Price £700,000